Chianciano Terme (SI), villa con giardino

Riferimento VV113
Prezzo 298.000 €
Contratto vendita
Tipologia Villa
Comune Chianciano Terme
Zona Chianciano Terme
Camere 6
Bagni 4
Mq 370
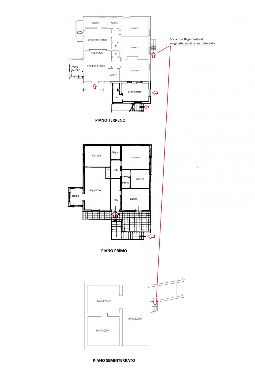
In zona collinare, con bella vista panoramica, si propone la vendita di villa di complessivi mq. 370 con giardino privato ed uliveto di complessivi mq. 2500. La proprietà si compone al piano terreno di: A) Bilocale di mq. 48 con soggiorno con cucinotto, camera e bagno finestrato con doccia. B) Trilocale di mq. 72 con soggiorno con angolo cottura, due camere matrimoniali, bagno finestrato con doccia e ripostiglio. Entrambe le unità sono state oggetto di ristrutturazione nel 2010. Al piano primo troviamo ulteriore appartamento di mq. 126, da recuperare, composto di ampio soggiorno e cucina con affaccio su terrazza abitabile, due camere matrimoniali, camera singola con bagno privato, bagno principale finestrato con doccia e studio. Completa la proprietà locali ad uso magazzino al piano seminterrato di mq. 100 e locali accessori (vano tecnico e monolocale) di mq. 24 al piano terreno. Contesto tranquillo immerso nel verde a breve distanza dai principali servizi.

Mappa

Contattaci

INFORMAZIONI EXTRA

AMBIENTI

Soggiorno
Cucina
Ripostigli 2
Terrazzi 1
Giardino
Cantina
Posto auto 3

LIVELLI & COMFORT

Livelli Piano semi interrato , Piano terra , Primo piano
Aria condizionata
Riscaldamento autonomo
Ingresso indipendente

 

2
2
G
175.00
n/d

planimetrie

Chianciano Terme (SI), villa con giardino