Pienza (SI), appartamento piano terra con giardino

Riferimento VA408
Prezzo 240.000 €
Contratto vendita
Tipologia Appartamento
Comune Pienza
Zona Pienza
Camere 2
Bagni 1
Mq 101
Anno di costruzione 2000
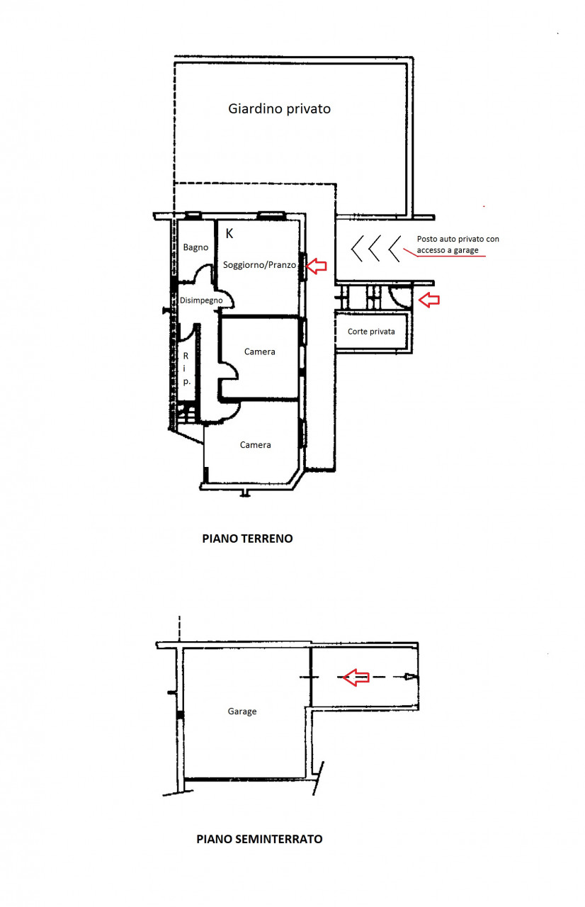
In contesto residenziale di recente costruzione, si propone la vendita di appartamento posto al piano terreno di mq. 70 con garage di mq. 36 con rampa di accesso che può essere usata come posto auto e corte privata di circa mq. 100, buona parte a giardino. La proprietà dispone di ingresso autonomo e si compone di soggiorno con angolo cottura, due camere matrimoniali, bagno finestrato con vasca e ripostiglio. L'immobile dispone di riscaldamento autonomo a metano e si trova in buono stato di manutenzione generale. Nessun costo di gestione condominiale. Tutti i principali servizi sono a breve distanza e facilmente raggiungibili. Ottima soluzione da destinare a "1° casa" o come investimento da mettere a reddito. Subito disponibile.

Mappa

Contattaci

INFORMAZIONI EXTRA

AMBIENTI

Soggiorno angolo cottura
Ripostigli 1
Giardino
Posto auto 1
Garage 1

LIVELLI & COMFORT

Livelli Piano rialzato
Riscaldamento autonomo
Ingresso indipendente
Porta blindata

 

2
2
E
156.50
n/d

planimetrie

Pienza (SI), appartamento piano terra con giardino