Torrita di Siena (SI), abitazione terratetto nel centro storico

Riferimento VB122
Prezzo 28.000 €
Contratto vendita
Tipologia Bifamiliare
Comune Torrita di Siena
Zona Torrita di Siena - Centro
Camere 2
Bagni 1
Mq 97
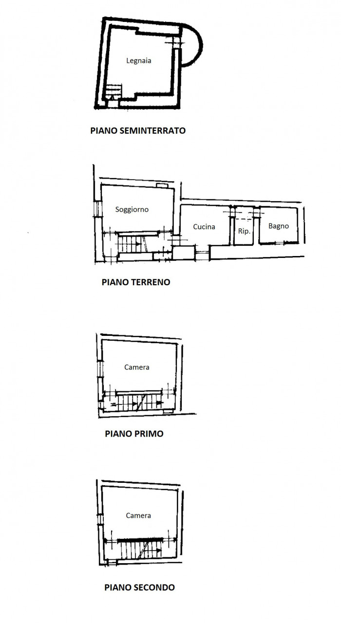
Nel caratteristico borgo di Torrita di Siena, si propone la vendita di abitazione terratetto di complessivi mq. 77, corredata di locale deposito di mq. 20. La proprietà si compone al piano terreno di soggiorno con caminetto, cucina e bagno con vasca. Collegamento interno al piano primo dove troviamo una camera matrimoniale. Piano secondo con ulteriore camera matrimoniale e un piccolo ripostiglio. L'immobile necessita di una ristrutturazione generale e rappresenta una ottima soluzione sia come "pied-à-terre" o come investimento da mettere a reddito. I principali servizi sono facilmente raggiungibili. Subito disponibile. L'agenzia dispone direttamente delle chiavi per le visite.

Mappa

Contattaci

INFORMAZIONI EXTRA

AMBIENTI

Soggiorno
Cucina
Ripostigli 1
Cantina

LIVELLI & COMFORT

Camino
Ingresso indipendente

 

2
2
F
175.00
n/d

planimetrie

Torrita di Siena (SI), abitazione terratetto nel centro storico