Torrita di Siena (SI), appartamento panoramico con garage

Riferimento VA411
Prezzo 149.000 €
Contratto vendita
Tipologia Appartamento
Comune Torrita di Siena
Zona Torrita di Siena
Camere 2
Bagni 2
Mq 125
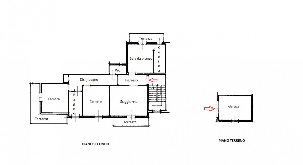
In zona residenziale, si propone la vendita di ampio appartamento di mq. 125 corredato di garage di mq. 20. L'abitazione si trova al piano secondo e si compone di ingresso, soggiorno con terrazza, sala da pranzo con caminetto e terrazza, cucina, due camere matrimoniali, di cui una con terrazza, bagno principale con vasca, bagno di servizio con doccia ed angolo lavanderia e ripostiglio. La proprietà dispone di riscaldamento autonomo a metano ed impianto di climatizzazione e si trova in ottimo stato di manutenzione generale. Contesto molto tranquillo con tutti i principali servizi raggiungibili a piedi. Nessun costo di gestione condominiale. Subito disponibile.

Mappa

Contattaci

INFORMAZIONI EXTRA

AMBIENTI

Soggiorno
Cucina
Ripostigli 1
Terrazzi 3
Giardino condominiale
Garage 1

LIVELLI & COMFORT

Livelli Ultimo piano
Piano numero 2
Aria condizionata
Camino
Riscaldamento autonomo

 

2
2
G
175.00
n/d

planimetrie

Torrita di Siena (SI), appartamento panoramico con garage